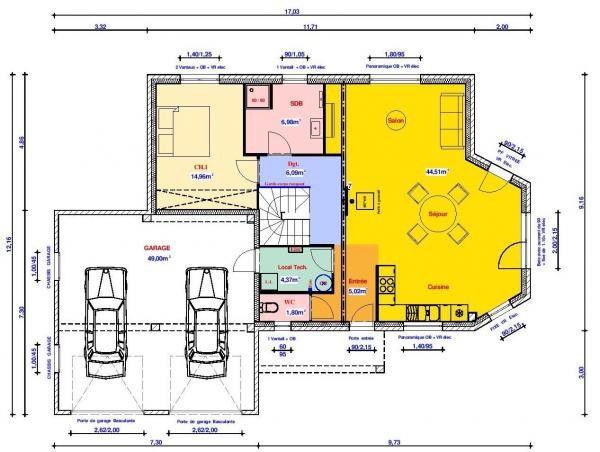
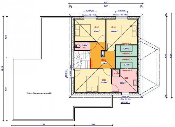
Ce modèle est indicatif. Il évoluera en fonction des aménagements que vous choisirez. Nombre de chambres, combles aménageables ou aménagées, extension de la surface initiale pour créer un séjour ouvert et lumineux... Personnalisez ce modèle tout en conservant son âme.