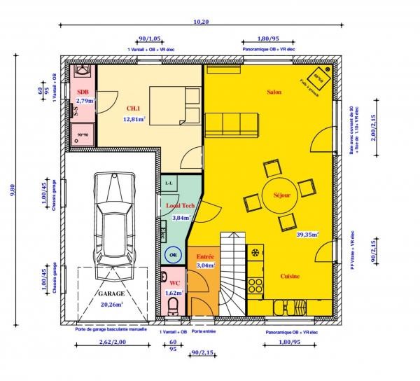
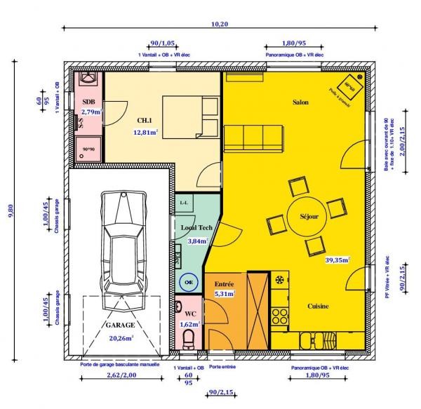
Ce modèle est évolutif en fonction des aménagements que vous choisirez. Nombre de chambres, création d’un espace dressing, extension de la surface initiale, sous-sol ou plain-pied...Vous pouvez personnaliser ce modèle tout en préservant son âme.
En option
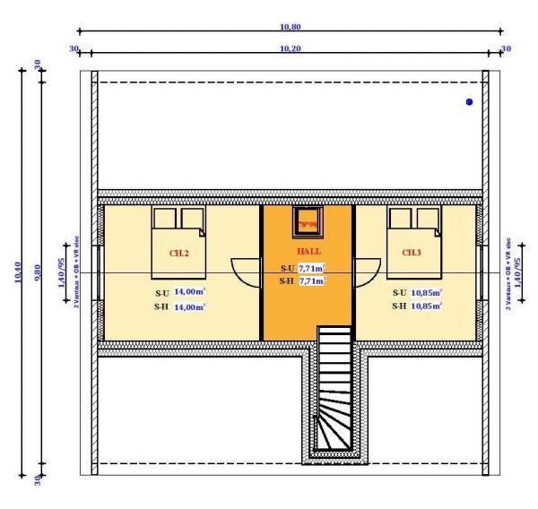
COMBLES NORMAUX OU ÉLARGIS
AMÉNAGÉS OU AMÉNAGEABLES